Beschrijving

Een sfeervol karakteristiek 4-kamerappartement met zonnig balkon en externe berging. De woonkamer is heerlijk ruim en van authentieke en suite deuren voorzien. Leuke ligging in het Rembrandtkwartier op loopafstand van het gezellige centrum van Oud Rijswijk. Diverse winkels, scholen, openbaar vervoer en uitvalswegen op korte afstand gelegen.

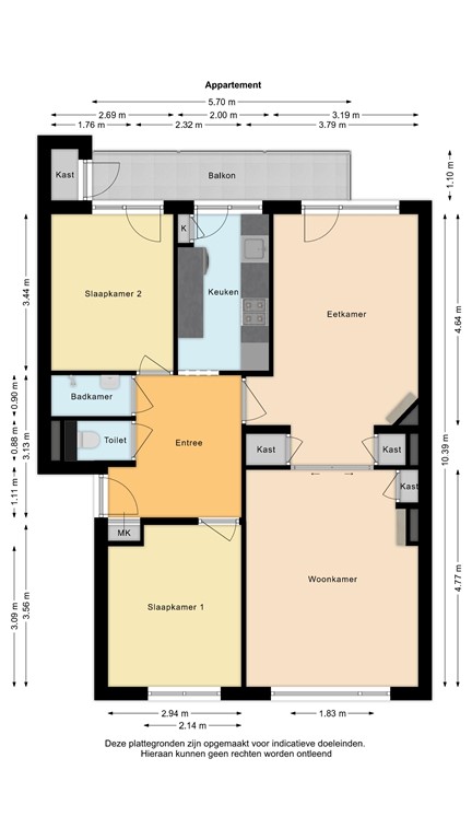
Indeling

Via een afgesloten portiek toegang tot het appartement op de eerste etage.

Eerste verdieping

Hal met twee slaapkamers, toilet, badkamer, keuken en ruime woonkamer.

Overige verdiepingen

Achter het complex gelegen externe berging.

Balkon

Zonnig balkon van ca. 6 m² met bergruimte.

Bijzonderheden

•	Ruime en lichte woonkamer met authentieke en suite deuren en inbouwkasten. De woonkamer is opgedeeld in een zitkamer aan de voorzijde en eetkamer aan de achterzijde met deur naar het balkon.
•	Afgesloten keuken voorzien van 4 pits gaskookplaat met afzuigkap, koelkast, vriezer, wasmachine-aansluiting, cv-ketel en deur naar het balkon.
•	Het toilet in de hal is voorzien van een zwevend closet.
•	De slaapkamer aan de achterzijde is ca. 9 m² en geeft toegang tot het balkon.
•	De badkamer is voorzien van een douchehoek en wastafel.
•	De slaapkamer aan de voorzijde is ca. 10 m².
•	De verwarming en warm water verloopt via een cv-ketel van Intergas (2012).
•	Rondom kunststof kozijnen met dubbel glas en het complex is gebouwd met betonnen verdiepingsvloeren.
•	Deze woning beschikt over energielabel B.
•	Externe berging van ca. 6 m².
•	Openbaar parkeren middels parkeervergunning (voor na 18.00 uur).
•	Actieve en gezonde VvE met een maandelijkse bijdrage van € 110,- (€ 120,- in 2026).
•	In de koopovereenkomst zal de ouderdoms- en materialenclausule worden opgenomen.
•	De woning is gelegen in een rustige en vriendelijke straat met centrale ligging op loopafstand van de Rijswijkse Herenstraat en Hendrik Ravensteijnplein.
•	Goede bereikbaarheid middels het openbaar vervoer; daardoor zijn o.a. het centrum van Den Haag en het strand snel bereikbaar.

Kenmerken