Beschrijving

Heerlijk ruim 4-kamerappartement met royaal balkon gelegen in de gezellige- en samenhorige Kuyperwijk-noord te Delft !
Het appartement is gelegen op de 7e etage en dit biedt dus, naast een levendig en ruimtelijk uitzicht, veel zonlicht in de gehele woning.

Indeling

Indeling complex:
Bellentableau met intercom naar de afgesloten entreeruimte welke lekker licht is door de grote raampartij. Vanaf hier kunt u met de trap of met de een van de twee liften naar iedere gewenste etage. De eigen fietsenberging is gelegen in het souterrain.

Indeling appartement: 
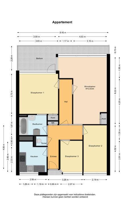
De eigen entree is gelegen aan de galerij van de 7e etage. Hal naar de gesloten keuken, badkamer, separaat toilet, meterkast en 2 slaapkamers. Een 2e gang leidt naar de woonkamer en de 3e slaapkamer met toegang tot het balkon.

Balkon

Het royale balkon van ca. 12 m² is oost-georienteerd en biedt op deze etage een leuk pitoreks uitzicht over de oranje daken van de na-oorlogse woningen in deze buurt en het van Forreestplein. Er is altijd wel iets te zien!

Bijzonderheden

• Er is een actieve vve waarvoor de maandelijkse bijdrage momenteel € 196,32 bedraagt
• Er is blokverwarming van toepassing waarvoor het maandelijke voorschot € 151,42 bedraagt
• Het bouwjaar van het complex is 1962 en het is gebouwd op eigen grond
• Het appartement wordt verwarmt middels radiatoren
• Deze woning beschikt over energielabel C
• De woning is gelegen op de 7e (van de 10 etages)
• De deurbel is gekoppeld aan een intercom zodat u kunt spreken met- en desgewenst de deur openen voor degene die beneden heeft aangebeld
• Door de hogere ligging van het appartement is het overal binnen overdag lekker licht 
• Gesloten keukenruimte aan de galerijzijde van ca. 7 m² met eenvoudige keuken in L-vorm voorzien van spoelbak met mengkraan en restbakje, inductie kookplaat, losse koel-vriescombinatie, losse magnetron en diverse kastjes
• Er is een separate toiletruimte; deze is half betegeld en voorzien van een hangend toilet
• De eenvoudige badkamer is grotendeels betegeld, voorzien van ligbad, wastafel, boiler en opstelplaats voor was/droogmachine. Er is tevens een deur naar de achtergelegen slaapkamer
• 2 slaapkamers aan de galerijzijde van respectievelijk ca. 6 m² en 9,5 m²
• De woonkamer is gelegen aan de balkonzijde en lekker licht door de grote raampartij; De woonkamer is eenvoudig met ca. 5 m² te vergroeten door de naastgelegen gang te verwijderen 
• Grote slaapkamer van ruim 13,5 m² met toegang tot de badkamer en het balkon
• De indeling van de woning is desgewenst op verschillende manieren aan te passen; bijv. tot een grote doorzon woonkamer met 1 grote slaapkamer aan de balkonzijde óf bijv. tot een grote woonkamer over de gehele breedte aan de balkonzijde en 1 of 2 slaapkamers aan de galerijzijde. 
• Voor een frisse neus of wat dírect zonlicht hoeft u alleen maar de deur uit te stappen naar het heerlijke balkon van ca. 12 m² dat georiënteerd is op het oosten. Van hieruit hebt u een leuk pittoresk uitzicht over o.a. de oranje daken van de na-oorlogse woningen in deze buurt en het van Forreestplein óf u kunt uw visite van hieruit uitzwaaien! 
• In het souterrain is de eigen fietsenberging gelegen van ruim 7 m².
• De bereikbaarheid van deze wijk is super, u zit met de auto via de Prinses Beatrixlaan in no-time op de A4/A12 en met de fiets in luttele minuten op het centraal station
• Diverse winkelvoorzieningen op zeer korte loopafstand
• Deze woning wordt zonder vragenlijst of lijst van zaken aangeboden; In de koopovereenkomst zal de ‘niet zelf bewoond clausule’ worden opgenomen
• In de koopovereenkomst zal de ouderdoms- en materialenclausule worden opgenomen.
• De woning is vanaf 1 juni 2026 beschikbaar
• Er zijn meerdere verkopers en deze hebben een volmacht bij notaris Rosenberg Polak afgegeven zodat de akte van levering bij deze notaris moet passeren.

Geïnteresseerd in deze veelzijdige woning?
vraag een bezichtiging aan via onze website, wij zijn u graag van dienst!

Kenmerken