Beschrijving

Monumentale dubbele bovenwoning met een karakteristieke uitstraling, gelegen op een prominente zicht-locatie naast het station van Delft. 
Deze woning van maar liefst 174 m2(!) beschikt over 5 slaapkamers, een dakterras en externe berging. 
De woning dient gemoderniseerd te worden en kan naar eigen smaak worden afgewerkt en ingedeeld. 
Top locatie met uniek uitzicht, gelegen direct aan de rand van het centrum met alle voorzieningen op korte loopafstand.

Indeling

Entree naar hal met meterkast en trapopgang.

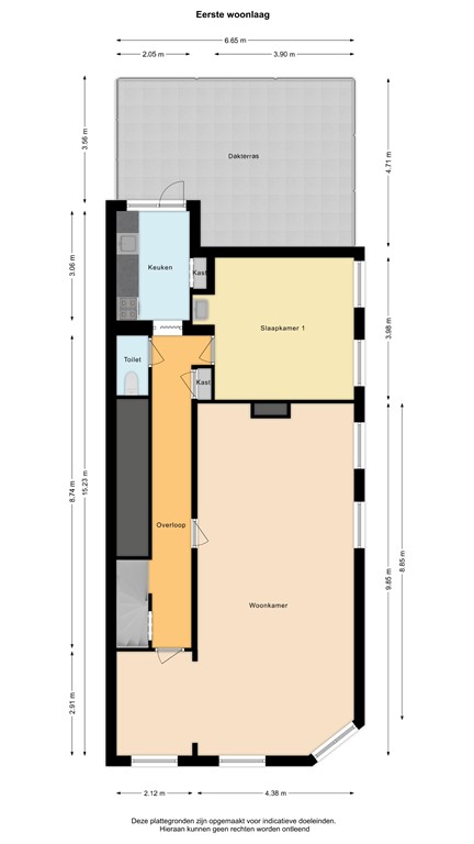
Eerste verdieping

Eerste etage met een royale woonkamer, gang met toilet, vaste kast, ruime slaap-/werkkamer en keuken met deur naar het dakterras.

Tweede verdieping

De 2e etage is nu voorzien van een ruime overloop, 5 slaap-/kamers, tussenkamer en badkamer.

Balkon

Dakterras van ca. 28 m², te bereiken via de keuken.

Bijzonderheden

• Woonkamer met grote raampartijen met sfeervol glas-in-lood en leuk uitzicht over de Spoorsingel naar Westvest en de binnenstad. 
• Eenvoudige keuken, voorzien van voornamelijk losse apparatuur en deur naar het dakterras.
• Ruime slaap-/werkkamer.
• Toilet met staand closet en leuke gekleurde wandtegeltjes.
• De tweede etage is nu ingedeeld met 5 kamers en een ruime overloop. Deze etage zal een koper naar verwachting een andere indeling willen geven.
• Badkamer met ligbad, wastafel, toilet en douchehoek.
• Tussenruimte met dakraam en cv-ketel (Remeha uit 2020).
• Rondom houten kozijnen met deels dubbel glas en voorzetramen.
• Samengesteld dak met bitumen en pannen; het dak is in matige staat.
• De woning dient gemoderniseerd te worden en kan naar eigen smaak worden afgewerkt en ingedeeld. Het betreft een gemeentelijk monument.
• Deze woning beschikt over energielabel G.
• De VvE is slechts beperkt actief; er is geen meejarenonderhoudsplan en er is een zeer beperkte VvE reserve.
• De externe berging is via de straat te bereiken; er is een parkeervergunning nodig; in nabijheid is eveneens een openbare parkeergarage.
• In de koopovereenkomst zal de niet-zelf-bewoond-clausule en de ouderdoms- en materialenclausule worden opgenomen.
• Vanuit ieder vertrek een prachtig vrij uitzicht over Delft.
• Op deze geweldige locatie loop je binnen een paar minuten het bruisende centrum van Delft, het gemeentehuis of het station binnen.
• Goed bereikbaar via de snelwegen A4 en A13.

Kenmerken