Beschrijving

Royale eengezinswoning met 4 ruime slaapkamers, aangebouwde berging en zonnige achtertuin op het westen. De woning is aantrekkelijk en rustig gelegen in een autovrij straatje. Een grote woning met veel potentie! Zeer goed bereikbaar via de A4 en A13 en diverse winkels en openbaar vervoer op korte loopafstand.

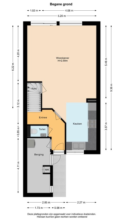
Indeling

Entree naar hal met toilet, trapopgang en berging aan de voorzijde.
Toegang tot de woonkamer met schuifdeur naar de tuin en aan de voorzijde gelegen keuken.

Eerste verdieping

1e etage is voorzien van 2 ruime slaapkamers en badkamer.

Tweede verdieping

2e etage met eveneens 2 ruime slaapkamers en bergruimte.

Tuin

Voortuin met groenborders en bestrating.
De achtertuin is zonnig op het westen gelegen en voorzien van terras, groenborders, kraantje, achterom, houten berging en elektrisch zonnescherm.

Bijzonderheden

•	Lichte woonkamer met schuifpui naar de tuin.
•	Half open keuken voorzien van 4 pits gaskookplaat met afzuigkap, spoelbak met mengkraan, koelkast, vriezer, carrouselkast en oven.
•	Het toilet in de hal is voorzien van een zwevend closet en wasbakje.
•	Inpandige berging aan de voorzijde van ca. 7 m² met deur naar de voortuin, wasmachine- en droger-aansluiting.
•	Eerste etage met 2 ruime slaapkamers van ca. 15 m² en 21 m² met grote raampartijen en inbouwkasten. De slaapkamer aan de achterzijde is tevens voorzien van een elektrisch zonnescherm.
•	De badkamer is voorzien van een inloopdouche, 2e toilet met zwevend closet, wastafel, designradiator en inbouwverlichting.
•	De 2e verdieping is eveneens voorzien van 2 ruime en lichte slaapkamers. Beide slaapkamers met kast/- en bergruimte.
•	Extra bergruimte in de nok.
•	De verwarming en warm water verloopt via een cv-ketel van Nefit.
•	Grotendeels aluminium kozijnen met bijna volledig HR++ glas.
•	De woning is gebouwd met betonnen vloeren.
•	Het betreft een object met 125 m² eigen grond. 
•	Deze woning beschikt over energielabel (in aanvraag)
•	In de koopovereenkomst zal de ouderdoms- en materialenclausule worden opgenomen.
•	Gunstige ligging met veel voorzieningen en uitvalswegen op zeer korte afstand.

Kenmerken