| Prijs | € 1.800,- /mnd |
| Type object | Winkelruimte |
| Perceeloppervlakte | 40 m² |
| Totale VVO | 51 m² |
| In units vanaf | 45 m² |
| Aanvaarding | Direct |
| Status | Verhuurd |
Aantrekkelijke winkelruimte gelegen in het middelpunt van het stadcentrum van Delft aan de karakteristieke markt met alle culturele en commerciële bezienswaardigheden op loopafstand. Aan leven- en beweging is in op deze locatie geen gebrek!
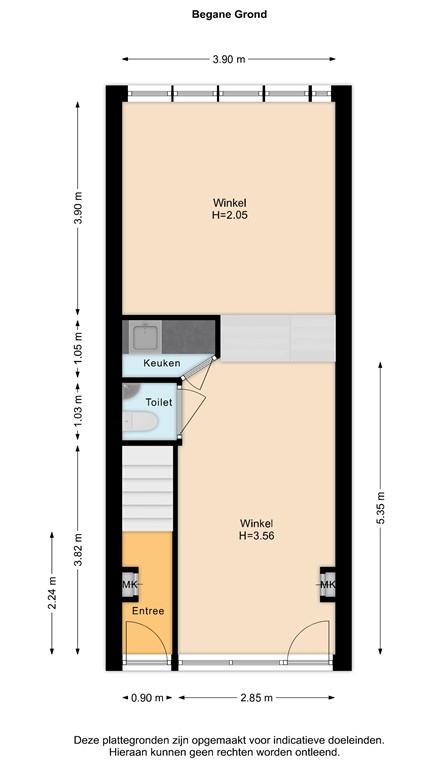
Entree via voordeur, naar open winkelruimte, pantry en toilet, trapopgang naar tussenverdieping met winkel-/kantoorruimte en trap van enkele treden omlaag naar verdiepte begane grond met winkelruimte.
• Deze winkelruimte is gelegen in het hartje van de binnenstad wat garant staat voor voldoende leven- en beweging rond de winkel. • De winkelruimte heeft etalageramen aan de marktzijde. Aan de achterzijde is een lager gelegen (souterrain) gedeelte met daarboven winkel-/of kantoorruimte op de tussenverdieping. Grote ramen aan de achterzijde met output richting de Oude Lange Dijk. • De ramen aan de voorzijde zijn voorzien van enkel glas de ramen aan de achterzijde van dubbel glas. • Bouwjaar 1848; Het betreft een gemeentelijk monument. • Er is geen eigen gasaansluiting aanwezig. • Er is geen individueel energielabel voor de winkel aanwezig. • De winkelruimte wordt opgeleverd in huidige staat. • Zeer aantrekkelijke ligging in het stadscentrum van Delft met veel ander aanbod van winkels, restaurants en cultuur in de directe omgeving. Ook het station en ander openbaar vervoer is op loopafstand. • Voor bedrijfseigenaren is er een ontheffing te verkrijgen t.b.v. laden lossen van goederen; langduriger parkeren kan tegen betaling in de Marktgarage nabij de Koepoortbrug. • 3 maandhuren waarborgsom van toepassing, aanvaarding mogelijk per direct, huurtermijn in overleg 3-5 jaar. Alle door ons verstrekte informatie is geheel vrijblijvend. Ondanks de zorg die wij aan de informatie besteed hebben, aanvaarden wij geen aansprakelijkheid voor schade als gevolg van onvolledigheid, actualiteit of onjuistheid. De genoemde maten zijn circamaten en moet als indicatief worden gezien, het staat huurder vrij eigen metingen te verrichten. Alle opgegeven informatie, maten en oppervlakten zijn indicatief. Bovenstaande informatie dient niet worden beschouwd als een aanbieding of offerte.
| Huurprijs | € 1.800,- per maand |
| Borg | € 5.400,- |
| Inrichting | Niet gestoffeerd |
| Inrichting | Niet gemeubileerd |
| Status | Verhuurd |
| Aanvaarding | Direct |
| Aangeboden sinds | Vrijdag 23 mei 2025 |
| Laatste wijziging | Woensdag 1 oktober 2025 |
| Type object | Winkelruimte |
| Soort bouw | Bestaande bouw |
| Bouwperiode | 1848 |
| Perceeloppervlakte | 40 m² |
| VVO | 51 m² |
| In units vanaf | 45 m² |
| Verkoopoppervlakte | 45 m² |
| Aantal bouwlagen | 1 |
| Ligging | Dichtbij openbaar vervoer In centrum Nabij winkelcentrum Vrij uitzicht |
| Lokale voorzieningen | Bank op 1000 meter tot 1500 meter Geldautomaat binnen 500 meter Recreatie op 2000 meter tot 3000 meter Restaurant binnen 500 meter Winkel binnen 500 meter Supermarkt binnen 500 meter |
| Bereikbaarheid | Bushalte binnen 500 meter Busknooppunt op 500 meter tot 1000 meter Treinstation op 500 meter tot 1000 meter Afrit van de snelweg op 1000 meter tot 1500 meter Tramhalte op 1000 meter tot 1500 meter |
| Kadastrale aanduiding | Delft C 908 |
| Perceeloppervlakte | 40 m² |
| Omvang | Deel perceel |
| Eigendomsituatie | Eigen grond |